Salle Georges Rosi

Vendres (34)

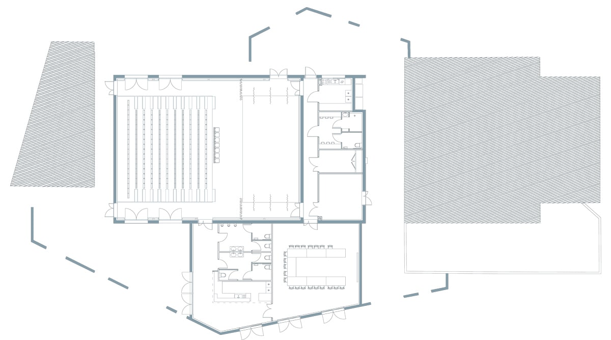
Ce projet de reconstruction de la salle polyvalente s’inscrit dans un ensemble bâti plus global, entre la salle des jeunes et les vestiaires du stade municipal. Si la construction reprend les proportions du bâti existant, sa volumétrie et son aspect, plus contemporains, rompent avec les équipements adjacents. Afin d’assurer l’unité architecturale de l’ensemble, une paroi est insérée en premier plan, réalisée en béton matricé et englobant les trois entités. Cet équipement culturel a pour vocation d’accueillir les associations de la commune (repas, théâtre…) comme l’organisation d’évènements plus importants (concerts, spectacles…).
Les parois intérieures de la salle principale sont traitées pour assurer le confort acoustique du public malgré la nature polyvalente de la salle, induisant des localisations de sources sonores variées selon les usages, et la présence de gradins amovibles. La rue du stade est dévoyée pour permettre la réalisation d’un parvis et d’un parc paysager en continuité avec la salle, sécurisant l’accès et permettant d’étendre les activités en extérieur (vins d’honneurs lors de mariages…). SDP : 534m²

Je partage ce projet !

Email
Facebook
Pinterest
LinkedIn